Оглавление

Жаротрубный котел

Стальные жаротрубные котлы в Брянске

Котельный завод "РЭП" г Брянск производит стальные жаротрубные котлы с ручными топками и автоматическими горелками в широком диапазоне мощностей, температурного режима и давления. На нашем официальном сайте вы можете подобрать и купить жаротрубный котел по доступной цене. Опытные специалисты нашего завода проконсультируют вас и помогут в подборе оборудования исходя из технологических процессов вашего производства. Мы поставляем установки на предприятия любых регионов России, в том числе в Брянске, Казахстана, Монголии, Таджикистана, Узбекистана, Белоруссии, Армении, Литвы.

Жаротрубные котлы российского производства применение

Цилиндрические жаротрубные котлы применяются в сельскохозяйственном производстве для пропарки кормов и изготовлении гранулированных комбикормов, в птицеводстве для удаления пера с забитой птицы, в пищевой промышленности для переработки и стерилизации молока, для дефростации мяса, при пивоварении, в деревообрабатывающей - для сушки и гнутья древесины в пропарочных камерах, в медицине для стерилизации инструмента и спецодежды, для производства стройматериалов при изготовлении ЖБИ изделий, для пропарки бетона в пропарочных камерах, для прогрева инертных материалов, а также для отопления и горячего водоснабжения производственных зданий и промышленных котельных.

Цилиндрический жаротрубный котел характеристики

Виды котлов бывают жаротрубные и водотрубные. Первые частично, до рабочего уровня, заполнены водой, которая выполняет функцию охлаждения поверхностей нагрева котла. Оставшаяся верхняя часть заполнена насыщенным паром, в которой происходит удаление капель воды из пара и из которой производится отбор пара потребителем. Во вторых объем котла полностью заполнен водой, которая является теплоносителем, охлаждает поверхность нагрева и передает тепло потребителю.

Таким образом отличие жаротрубных и водотрубных котлов заключается в следующем: в первых греющая среда (дымовые газы) омывает поверхности нагрева (жаровую трубу) с внутренней стороны, тогда как во вторых греющая среда омывает поверхности нагрева с наружной стороны.

Агрегат в водогрейном режимеАгрегат в паровом режиме
Мощность, МВтТемпература воды, доДавление воды, доПроизводительность, кг/чТемпература пара, доДавление пара, до
0.2295 - 115 °С0.1 - 0.3 МПа300115 - 170 °С0.07 - 0.9 МПа
0.37500
0.52700
0.741000
1.11500
1.21600

Мощность жаротрубных котлов зависит от расхода твердого топлива забрасываемого в топку агрегата и объема подаваемого воздуха на горение, при поддержании постоянного давления в котлоагрегате. Мощность в котле КВа жаротрубном регулируется объемом подаваемого горелкой топлива в топку. Выбирая мощность агрегата, необходимо знать максимальную производительность пара, которая потребуется вам в работе.

Жаротрубный котел устройство

Жаротрубный дымогарный котел имеет корпус цилиндрической формы, внутри которого, в торцевой части, размещена топка, а с противоположной стороны система отвода дыма. Топочная камера - цилиндрическая, выполнена в виде жаровой трубы. Все пространство между корпусом и топкой является водяной рубашкой. Рядом с топкой находится жаротрубный теплообменник, по которому циркулирует теплоноситель. Он выполнен в виде горизонтальных трубок небольшого сечения для увеличения эффективности нагрева воды.

Для подачи и отвода воды в систему предусмотрены штуцера. Входной штуцер, через который в агрегат поступает вода, находится в нижней части теплообменника. Выходной штуцер в верхней.

В передней части жаровой трубы в верхней части установлена легкоплавкая пробка – предохранительное устройство прямого действия. В случае повышения температуры она расплавляется, вода через отверстие поступает в топку, пламя в топке затухает, а в паровой установке понижается давление пара. Такая конструкция обеспечивает безопасность жаротрубных котлов.

Преимущества жаротрубных котлов - отсутствие нагрева внешней поверхности корпуса благодаря использованию водяной рубашки, эффективное распределение тепла и полное отбор мощности от создаваемого теплового потока при сгорании топлива достигается высокий кпд более 90%.

Жаротрубный цилиндрический котел твердотопливный

К фронтовой стороне агрегата крепится чугунная фронтовая плита, имеющая крепление для установки вентилятора. Вентилятор служит для принудительной подачи воздуха в подколосниковое пространство и форсирования процесса горения.

Колосники, на которых происходит горение топлива, укладываются в нижней части топочной камеры.

Для осмотра внутренних поверхностей топки в качестве лаза используется дверка для шурования угля.

Жаротрубный цилиндрический котел газовый

На фронт газового цилиндрического парового котла крепится горелка. В топочной камере происходит горение топлива.

На фронтальной части газовых жаротрубных котлов крепится чугунная плита с держателем для горелки. Агрегат оборудуется горелками фирм UNIGAS различной мощности в зависимости от предполагаемой нагрузки. На горелках устанавливается стальная форсунка с варьируемой длиной, для уменьшения сопротивления воздуха применяется специальный соплодержатель. Диффузор, или головка сгорания, монтируется с помощью градуированной шкалы, позволяющей легко придать ему нужное положение. Горелки жаротрубных котлов характеризуются наличием разъемов быстрого подключения к питанию, а также возможностью получить легкий доступ ко всем частям горелки при аварийной ситуации или плановом обслуживании. Уменьшенная толщина соединительного фланца делает горелку достаточно компактной.

В комплект автоматизированной горелки обычно входит устройство автоматического контроля пламени и механизм модулируемого регулирования мощности.

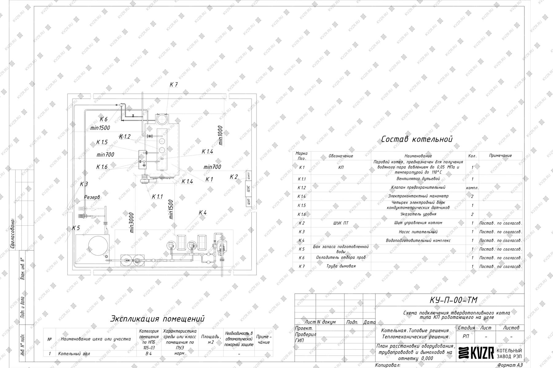
Подача питательной воды производится питательным насосом. В соответствии с ГОСТ на жаротрубные котлы должно быть установлено два насоса, рабочий и резервный. Дренажи производят дренирование трубной системы от шлама, воздушники удаление скапливающего воздуха. На паросборник устанавливаются 2 предохранительных клапана.

Жаротрубный котел принцип работы

Принцип работы жаротрубного котла основан на сжигании топлива в топке агрегата и дальнейшая передача тепловой энергии сгоревшего топлива при помощи теплообменника теплоносителю. Топливо сгорает в топочной части агрегата, окруженной водяной охлаждаемой рубашкой. Нагретые газы проходят во внутренней области труб теплообменника и нагревают металл. Нагретые трубы большого диаметра погружены в воду, соответственно отдают тепло воде. Вода нагревается до температуры кипения и превращается в пар. Образовавшийся пар проходит по трубкам малого диаметра, которые находятся в трубах большого диаметра.

Таким образом, проходящие сквозь трубы газы нагревают воду и перегревают пар. Перегрев осуществляется проходом через вторичную трубную систему и уже в перегретом состоянии пар выводится на потребительские нужды.

Установка жаротрубного котла

Жаротрубные котлы российского производства поставляются в полной заводской готовности. На месте монтажа агрегаты устанавливаются на подготовленную ровную поверхность и закрепляются анкерными болтами. Подключаются инженерные коммуникации, устанавливаются контрольно-измерительные приборы, запорно-регулирующие приборы, автоматика, дымовая труба.

Размещение и монтаж агрегата в котельной должно производиться в соответствии с

  • проектом, выполненным специализированной эксплуатацией
  • СП 89.13330. 2012 «Котельные установки. Актуализированная редакция СНиП II-35-76»
  • «Правил технической эксплуатации тепловых энергоустановок»
  • «Правил устройства и безопасной эксплуатации паровых котлов с давлением пара не более 0,07 МПа (0,7 кгс/см2), водогрейных котлов и водоподогревателей с температурой нагрева воды не выше 388 К (115 С)».

Монтаж котлов парогенераторов КП должен производиться монтажной организацией имеющей допуск на выполнение данного вида работ и располагающей технологическими средствами, необходимыми для качественного проведения работ.

Купить жаротрубный котел

Для того чтобы купить жаротрубный цилиндрический котел в Брянске, вы можете сделать заявку в отдел сбыта по телефону (38-52) 29-97-41 (42), либо оформить заявку онлайн. Наши менеджеры дадут консультацию по подбору вспомогательного оборудования для выбранных вами моделей и рассчитают стоимость доставки промышленного парогенератора до вашего региона и населенного пункта.

Автор: Антон Гор

Дата публикации: 08.12.2025

Похожие статьи
О заводе
  • Котельный завод «РЭП» выпускает водогрейные котлы марки HeatExpert и паровые котлы STEAMEXPERT, топки, транспортеры, скиповые подъемники, циклоны и вспомогательное оборудование. Каждое изделие собирается с тщательным контролем качества на всех этапах.
  • Наше оборудование успешно работает практически во всех регионах России от Крыма до Камчатки, на территории соседних государств Казахстана, Белоруссии, Монголии, Литвы, Узбекистана.
  • Разработки проектного отдела завода имеют патенты. Оборудование производится по типовым проектам и по техническим заданиям.
  • Вся продукция завода сертифицирована.
  • Аттестованная технология сварки позволяет выпускать поднадзорную продукцию.
  • Выполняем разделы проектов теплоснабжения для прохождения экспертизы и составления проектно-сметной документации. Состоим в реестре членов СРО для выполнения проектных и строительных работы.
  • Выполняем инженерно-консультационные услуги по эксплуатации и наладке котельных.
3D-турпо заводу

Виртуальный тур нашего завода

3D-турпо котельной

Виртуальный тур нашего завода

Смотреть видеообзор на

Котельный завод "РЭП" производит стальные жаротрубные котлы с ручными топками и автоматическими горелками в широком диапазоне мощностей, температурного режима и давления. Агрегаты применяются в сельскохозяйственном производстве для пропарки кормов и изготовлении гранулированных комбикормов, в птицеводстве для удаления пера с забитой птицы, в пищевой промышленности для переработки и стерилизации молока, для дефростации мяса, при пивоварении, в деревообрабатывающей - для сушки и гнутья древесины в пропарочных камерах, в медицине для стерилизации инструмента и спецодежды, для производства стройматериалов при изготовлении ЖБИ изделий, для пропарки бетона в пропарочных камерах, для прогрева инертных материалов.

Наш youtube канал
Документы завода
  • Сертификаты завода
  • Членство в СРО
  • Аттестованная технология сварки
  • Патенты на котельное оборудование
  • Товарные знаки
Смотреть все документы
Сертификат на водогрейные котлы на твердом и жидком топливе
Сертификат на водогрейные котлы на газе и жидком топливе
Сертификат на котлы отопительные паровые КП
Сертификат на топки
Сертификат на щиты управления
Сертификат на скиповые подъемники
Сертификат на золоуловители (циклоны)
Сертификат на конвейеры скребковые
Сертификат на дробилки
Сертификат на клапаны предохранительные
Сертификат на бункер-накопитель механизированный
Сертификат на автоматику газовых горелок
Сертификат о происхождении товара форма СТ-1
Членство в СРО
Членство в СРО
Аттестованная технология сварки
Свидетельство аттестованной технологии сварки
Патент на отопительный котел
Патент на водогрейный котел
Патент на топку водогрейного котла
Патент на водогрейный газовый котел
Патент на водогрейный котел
Патент на топочное устройство твердотопливного котла
Патент на водогрейный котел
HEATEXPERT товарный знак
KVZR товарный знак
STEAMEXPERT товарный знак
background