string(4) "1622"

Котел 400 кВт газовый в Брянске

Версия
для печати
В наличии на складе Цена в рублях с НДС 373 000
Получите скидку
у менеджера
Цена на котел 400 кВт газовый с доставкой от 373 000 рублей с НДС
Вид топкиГазовая горелка
Максимальная тепловая мощность, кВт400
ТопливоГаз
Отапливаемая площадь, м²3000-4300
Доставка ТК в г. Брянск и по России
Безналичный расчет
Подобрать котел по мощности
Опросный лист
  • Технические
    характеристики
  • Описание
    товара
  • Комплект
    поставки
  • Дополнительно
    потребуется
  • Подключение и
    монтаж
  • Сертификаты и
    гарантии
  • Отзывы о
    продукции
  • Видео
    обзор
  • Подбор
    котла

Газовый котел HEATEXPERT надежная и эффективная водотрубная конструкция

  • Развитая конвективная поверхность нагрева снижает температуру уходящих газов 180-200°C - КПД 92%
  • Все элементы топочной камеры равномерно охлаждаются теплоносителем
  • Отсутствие трубных досок исключает деформации и разрывы сварных швов
  • Быстрый выход на режим и эксплуатационная гибкость
  • Высокая скорость потока теплоносителя (профилактика накипи) и минимальные требования к химводоподготовке

Технические характеристики котла 400 кВт газового

Тип Котел КВа
Тип отопительного котла Газовый
Бренд HeatExpert
Марка Котел Heatexpert
Вид топки Газовая горелка
Совместимое горелочное устройство Длинофакельные горелки различных производителей производителей
Максимальная тепловая мощность, МВт 0.4
Максимальная тепловая мощность, кВт 400
Максимальная тепловая мощность, Гкал 0.34
Диапазон регулирования мощности, % 40-100
Топливо Газ
Низшая теплота сгорания проектного топлива, кКал/нм³ 9400
КПД котла на ГАЗЕ, не менее, % 91.4
Расход ГАЗА среднечасовой за отопительный сезон, м³/ч 23
Расход ГАЗА при максимальной нагрузке котла, м³/ч 41
Расход условного топлива, кг/ч 55
Минимальная температура воды на входе в котел, °C 55
Максимальная температура воды на выходе из котла, °C 115
Давление воды, не более, МПа (кгс/см²) 0.3-0.6 (3-6)
Номинальный расход теплоносителя, м³/ч 14
Расход теплоносителя через котел min-max, м³/ч 10-18
Гидравлическое сопротивление при номинальном расходе, МПа (кгс/cм²) не более 0.07 (0.7)
Аэродинамическое сопротивление, Па (мм. вод. ст.) 280 (28)
Давление в топке, Па 330 (33)
Объем уходящих газов, м³/ч 850
Температура уходящих газов, не более, °С 161
Тяга Принудительная
Водяной объем котла, л 300
Объем топочной камеры, м³ 0.79
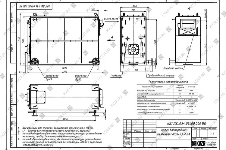
Размер топочной камеры, длина*ширина*высота, мм 1800х550х800
Присоединительные размеры по водяному тракту, Ду 65
Присоединительные размеры газохода уходящих газов, ширина*высота / сечение, мм/м² 350х200 / 0.07
Размеры корпуса котла: длина*ширина*высота, погрешность ± 50, мм 2030х760х1455
Габаритные размеры котла, длина*ширина*высота, мм 2260х940х1555
Масса, кг 1400
Конструкция котла трубная, газоплотная
Количество контуров Одноконтурный
Размещение Напольный
Тип камеры сгорания Закрытый
Управление Электронное
Принцип работы газового котла Конвекционный
Энергонезависимый Нет
Тип питания Трехфазное
Встроенный циркуляционный насос Нет
Встроенный расширительный бак Нет
Энергоэффективность Высокая
Отапливаемая площадь, м² от 3000 до 4300
Отапливаемый объем, м³ от 9000 до 13000

Котел газовый 400 кВт промышленный в Брянске

Надежный и эффективный промышленный газовый котел мощностью 400 кВт, предназначен для получения горячей воды номинальной температурой на выходе из котла 95 (115) °С рабочим давлением до 0,6 (6,0) МПа (кгс/см), используется в системах централизованного теплоснабжения на нужды отопления и горячего водоснабжения. Котел газовый 400 кВт водогрейный предназначен для работы в открытых и закрытых системах теплоснабжения с принудительной циркуляцией воды. Вид сжигаемого топлива: природный газ. Давление газа перед горелкой может быть как среднее, так и низкое. Также котел может работать с горелкой на сжиженном газе.

Конструкция с продуманной многоходовой схемой движения теплоносителя и газов обеспечивает высокий КПД, долговечность и простоту в эксплуатации.

Применяемые горелочные устройства для промышленного котла 400 кВт на газе:

  • горелки для низкого и среднего давления;
  • горелки, работающие на сжиженном газе;
  • российские двухступенчатые и модулируемые горелки EMMA, ILKA;
  • импортные горелки UNIGAS, BALTUR, ECOSTAR и прочие блочные длинофакельные горелки.

Преимущества котла 400 кВт газового HeatExpert производства котельный завод «РЭП»

Водогрейный газовый котел 400 кВт гладкотрубной трехходовой конструкции имеет существенные преимущества перед жаротрубными моделями благодаря следующим конструктивным особенностям:

  • Гладкотрубная поверхность нагрева воды имеет развитую поверхность, при компактных внешних размерах плотный пучок конвективных труб, расположенных в шахматном порядке и омываемый дымовыми газами в поперечном направлении обеспечивает высокую тепловую эффективность котельного блока. Газы в котле делают три хода – в топке, в первом конвективном пакете и во втором.
  • Существенное достоинство гладкотрубной конструкции - надежность. Трубная система собирается из труб ввариваемых в коллектор, также охлаждаемые теплоносителем, а не в трубные доски. В таком теплогенераторе отсутствует давление перегретых труб на трубную доску и напряжения в сварных швах, вызывающее деформации и разрыв швов. Материал применяемых труб сталь 20.
  • Быстрый выход на режим и высокая маневренность – благодаря малому водяному объему.
  • В водотрубных котлах 400 кВт на газу теплоноситель поступает через коллектор с перегородками и распределяется по трубной системе равномерными потоками с высокой скоростью. Такая схема движения потока воды исключает образование застойных зон, локальный перегрев поверхностей нагрева, местное выпадение солей и отложения накипи, и делает агрегат менее требовательным к качеству питательной воды.
  • И наконец, главное, водотрубный гладкотрубный газовый котел 400 кВт безопасен. Даже при внезапном снижении давления внутри теплогенератора до атмосферного не произойдет выделение пара, и он не взорвется.

Устройство водогрейного котла 400 кВт на газе

Стальной напольный водогрейный котел 400 кВт газовый имеет газоплотные топочную камеру и конвективную часть. В заднем экране топочной камеры выполнено отверстие, в котором установлен взрывной клапан, предохраняющий конструкцию от разрушения при возникновении избыточного давления в топочной камере.

Промышленный отопительный газовый котел 400 кВт устанавливается на раму. Рама котла выполнена из швеллера и ставится на опоры. Опоры котла крепятся к ровной подготовленной поверхности анкерными болтами. Блок горелки закрепляется на фронтовой плите с помощью болтовых соединений. Фронтовая плита закрепляется при помощи шарниров и выполняет функцию люка, что позволяет осуществлять доступ в топочную камеру котла для осмотра и ремонтных работ без разбора обшивки и изоляции.

Изоляция выполняется из жаростойких материалов и стальных листов.

Крепления и амбразура под горелку на фронтовой плите изготавливается под выбранную заказчиком горелку. За счет универсальной конструкции топочной камеры, российский газовый промышленный котел 400 кВт может работать с широким рядом горелочных устройств отечественного и импортного производства.

Выход газов в горизонтальном котле 400 кВт на газе для отопления происходит сверху. В случае необходимости возможно изготовление опускного газохода.

Также наш завод выпускает модели котлов данной мощности работающие с отечественными горелками марки РГМГ, ГБЛ, ГМ, ГМГ, АПНД, ГГ. Их стоимость вы можете уточнить в отделе сбыта. Данные типы горелок имеют более широкий угол раскрытия факела, поэтому требуется более широкая топочная часть котла.

Стационарный нагревательный водяной котел 400 кВт на газе работает под наддувом, без дымососа.

Сфера применения котлов HeatExpert

Производственный водонагревательный котел 400-115 (95) ГН на газе применяется для автономного отопления, ГВС и вентиляции различных объектов:

  • цехов, складов, ангаров, производственных баз, гаражей, административных зданий, автосервисов, станций СТО, сушильных камер.
  • теплиц, ферм, птицефабрик, зерносушильных комплексов.
  • больниц, школ, детских садов, санаториев, клубов, административных зданий, магазинов.
  • устанавливается в блочно-модульных и стационарных отопительных котельных для отопления жилых кварталов.

Как купить газовый котел 400 кВт (0.4 МВт)

Чтобы купить промышленный водогрейный котел 400 кВт на газе и получить комплексное решение для вашей котельной, свяжитесь с нами любым удобным способом:

Позвоните в отдел сбыта по телефону:

+8-800-700-17-43

+7 (3852) 29-97-41(42) (многоканальный)

Напишите в отдел сбыта на электронную почту:

SB@KVZR.RU

Отправьте онлайн-заявку на коммерческое предложение через сайт.

Наши специалисты помогут вам:

  • Подобрать необходимую комплектацию и вспомогательное оборудование (горелку, регулятор газа, насосы, щит управления).
  • Рассчитать окончательную стоимость котла с учетом доставки до г. Брянск.
  • Просчитать индивидуальные доработки под ваши технические условия.

Индивидуальные доработки и производство газовых котлов 400 кВт HeatExpert

Котельный завод «РЭП» изготавливает котлы 400 кВт на газу не только по типовым проектам, но и по техническому заданию заказчика.

Мы можем изготовить для вас:

  • Зеркальное исполнение (расположение штуцеров и патрубков с противоположной стороны).
  • Изготовление опускных и поворотных газоходов.
  • Изготовление амбразуры фронтовой плиты с креплением под вашу горелку.
  • По спец заказу изготовление газового котла 400 кВт из цельнотянутой бесшовной трубы ГОСТ 8732 (34).
  • Возможны другие изменения под особенности вашей котельной.

Комплект поставки котла 400 кВт газового

Цена водогрейного котла 400 кВт газового в Брянске включает в себя котельный блок в изоляции, вентили, затворы, манометры, термометры и предохранительные клапаны. Ниже приведена подробная информация.

Дополнительное вспомогательное оборудование для работы котла 400 кВт газового

Для эффективной и надежной работы котла 400 кВт газового в вашей котельной вам потребуется дополнительное оборудование - автоматика ЩУК, горелка импортного или отечественного производства, насос сетевой и подпиточный, регулятор давления газа (по необходимости), газоходы и переходники для газового тракта, дымовая труба. Мы предлагаем рассмотреть типовые варианты комплектации.

В случае если у вас на объекте уже имеется насосное и горелочное оборудования, мы можем проверить совместимость котла 400 кВт газового нашего производства и вашего оборудования.

Можем изготовить нестандартные узлы для выполнения быстрого монтажа котла - газоходы и узлы обвязки.

Типовую схему монтажа котла вы можете посмотреть во вкладке схемы подключения и монтаж.

  • автоматический розжиг и останов котла;
  • поддержание в заданных пределах температуры теплоносителя на выходе из котла путем позиционного регулирования мощности горелки;
  • плановый останов котла;
  • аварийный останов котла с выдачей аварийной звуковой и световой сигнализации, отображение причины останова на OLED индикаторе и запоминание ее;
  • автоматическая защита, обеспечивающая останов котла и блокировку его пуска при возникновении аварийных ситуаций.
Цена 170 000 рублей с НДС
  • взаимозаменяема с отечественными и импортными блочными горелками (по функциональным, техническим характеристикам, типоразмерному ряду).
  • заводские настройки и простота конструкции позволяют сократить пуско-наладочные работы и привлечение высококвалифицированного персонала.
  • плавное раздельное регулирование подачи газа и воздуха.
  • контроль герметичности газовой арматуры.
  • режим ручного управления мощностью.
  • возможность подключения датчика кислорода.
  • высокая степень помехозащиты.
Цена 277 000 рублей с НДС

Производим газоходы по индивидуальному заказу согласно схеме компоновки котельной. Системы газоходов могут включать в себя:

  • шиберы;
  • газоходы различного сечения;
  • переходы;
  • тройники;
  • карманы всасывающие дымососов.

Используется в качестве сетевого насоса в промышленных отопительных котельных

Цена 56 800 рублей с НДС

Используется в качестве подпиточного насоса в промышленных отопительных котельных

Цена 47 500 рублей с НДС

Используется в качестве сетевого насоса в промышленных отопительных котельных

Цена 141 300 рублей с НДС

Схемы подключения и монтаж котла 400 кВт газового

Водогрейный твердотопливный стальной отопительный котел 400 кВт газовый, предназначен для получения горячей воды номинальной температурой на выходе из котла от 95 до 115 °С рабочим давлением до 0,6 (6,0) МПа (кгс/см), используемой в системах централизованного теплоснабжения на нужды отопления, горячего водоснабжения. Устанавливается в производственных, промышленных и отопительных котельных.

Схема подключения и монтажа водогрейного промышленного котла 400 кВт газового
Смотреть
Скачать

Схема подключения и монтажа котла 400 кВт газового

Монтаж водогрейного котла 400 кВт газового и вспомогательного оборудования в котельной должно производиться в соответствии с проектом и учетом требований СП 89.13330. 2016 «Котельные установки. Актуализированная редакция СНиП II-35-76» и «Правил устройства и безопасной эксплуатации паровых котлов с давлением пара не более 0,07 МПа (0,7 кгс/см2), водогрейных котлов и водоподогревателей с температурой нагрева воды не выше 388 К (115 С)». Правильный монтаж котла – залог его надежной и долгой работы.

Чтобы правильно подключить котел 400 кВт газовый в котельной необходимо оставить проемы для обслуживания оборудования во время эксплуатации. На представленной здесь схеме указаны их минимальные размеры. Кроме того, в данной примерной схеме монтажа водогрейных котлов и оборудования указан перечень минимально необходимого вспомогательного оборудования для правильной работы котла.

К вспомогательному оборудованию при подключении промышленного водогрейного котла КВа относят - щит управления котлом, горелку импортного или отечественного производства, насос циркуляционный, насос подпиточной воды, регулятор давления газа (по необходимости), бак запаса воды, расширительный мембранный бак, газоходы и переходники для газового тракта, дымовую трубу.

В случае если подпиточная вода не соответствует по своим характеристикам требованиям к питательной воде, необходимо предусмотреть систему водоподготовки котловой воды.

Для котельных 1 категории, являющиеся единственным источником тепла системы теплоснабжения и обеспечивающие потребителей первой категории, не имеющих индивидуальных резервных источников тепла, необходимо предусмотреть полное резервирование оборудования – подключение 2 (двух) котлов, насосов, ТДМ. Пунктиром обозначено оборудование для резервирования.

Для котельных 2 категории, включающие в себя промышленные и производственные котельные резервирование нужно предусматривать по необходимости.

Дополнительные услуги

Сертификат и качество котла 400 кВт газового ГЛЖ

Водогрейные котлы производства Котельный завод "РЭП" соответствуют строгим стандартам качества и безопасности. Завод производит котлы в соответствии с требованиями ГОСТ 30735-3001 по Техническим Условиям завода.

Котлы имеют сертификаты соответствия Техническим регламентам Таможенного союза:

  • ТР ТС 010/2011 «О безопасности машин и оборудования».
  • ТР ТС 032/2013 - «О безопасности оборудования, работающего под избыточным давлением».
  • ТР ТС 016/2011 «О безопасности аппаратов, работающих на газообразном топливе»
Сертификат на котлы водогрейные .jpg
Сертификат на водогрейные котлы
Сертификат на водогрейные газовые котлы .jpg
Сертификат на газовые водогрейные котлы
Знак товарный на водогрейные котлы HEATEXPERT .jpg
Товарный знак на водогрейные котлы HEATEXPERT

Отзывы о продукции

Отзыва о товаре пока нет, будьте первыми!

Котел 400 кВт на газе используется для отопления производственных, административных и жилых зданий. Котельный завод производит и поставляет весь перечень сопутствующего котельного оборудования- насосы, газоходы, автоматику, дымососы, дымовые трубы, циклоны и прочее. Специалисты нашего завода бесплатно подберут сопутствующее оборудование, а в случае необходимости, выполнят проектирование, монтаж и пуско-наладку котельной установки.

Смотреть видеообзор на
Подобрать котел по мощности
Подберите необходимую мощность котла для вашего объекта
Тип здания
Регион
Населенный пункт
Вид топлива
Наружный объем здания (м3)
Отапливаемый подвал

Как подобрать мощность котла для вашего объекта

Подобрать мощность котла по площади важно учитывая не только площадь и объем здания, но и тип зданий и климатические данные региона.

На нашем сайте калькулятор расчета мощности котла учитывает тепло, требуемое на возмещение тепловых потерь через строительные конструкции и потери, вызываемые инфильтрацией (проникновением) наружного воздуха, через их неплотности и периодически открываемые двери.

Наружный строительный объем здания должен определяться умножением площади горизонтального сечения, взятого по внешнему обводу здания на уровне первого этажа на полную высоту здания, измеренную для панельных зданий: от уровня чистого пола (нулевой отметки) до верхней плоскости теплоизоляционного слоя чердачного покрытия, для остальных строений от уровня земли.

Расчетная температура воздуха в отапливаемых зданий принимается в зависимости от типа и назначения здания:

  • Гостиница, общежитие, административное здание, жилые дома + 20 °С;
  • Детские сады, ясли, поликлиники, амбулатории, диспансеры, больницы + 22 °С;
  • Высшие и средние специальные учебные заведения, общеобразовательные школы, школы интернаты, лаборатории, предприятия общественного питания, клубы, дома культуры + 16 °С;
  • Театры, магазины, пожарные депо + 15 °С;
  • Кинотеатры + 14 °С;
  • Гаражи + 10 °С;
  • Бани + 25 °С.

В случае если требуется отопление различных по типу зданий, теплопотребление каждого считается отдельно, полученные значения складываются и подобрать мощность котла нужно в соответствии с общей суммарной мощностью каждого отдельно стоящего задания.

Климатические условия вашего региона принимаются в соответствии с СП 131.13330 Строительная климатология. Данные по всем регионам России занесены в наш калькулятор расчета мощности котла.

Подобрать мощность котла по площади с учетом потребностей объекта в тепле на вентиляцию и горячую воду возможно только с более детальным расчетом. Его вы можете заказать в отделе сбыта котельного завода отправив заявку на электронный адрес sb@kvzr.ru или позвонив по телефонам (38-52) 29-97-41, 29-97-42.

Вопрос-ответ

  • Технические
    характеристики
  • Описание
    товара
  • Комплект
    поставки
  • Дополнительно
    потребуется
  • Подключение и
    монтаж
  • Сертификаты и
    гарантии
  • Отзывы о
    продукции
  • Видео
    обзор
  • Подбор
    котла
Документы завода
  • Сертификаты завода
  • Членство в СРО
  • Аттестованная технология сварки
  • Патенты на котельное оборудование
  • Товарные знаки
Смотреть все документы
Сертификат на водогрейные котлы на твердом и жидком топливе
Сертификат на водогрейные котлы на газе и жидком топливе
Сертификат на котлы отопительные паровые КП
Сертификат на топки
Сертификат на щиты управления
Сертификат на скиповые подъемники
Сертификат на золоуловители (циклоны)
Сертификат на конвейеры скребковые
Сертификат на дробилки
Сертификат на клапаны предохранительные
Сертификат на бункер-накопитель механизированный
Сертификат на автоматику газовых горелок
Сертификат о происхождении товара форма СТ-1
Членство в СРО
Членство в СРО
Аттестованная технология сварки
Свидетельство аттестованной технологии сварки
Патент на отопительный котел
Патент на водогрейный котел
Патент на топку водогрейного котла
Патент на водогрейный газовый котел
Патент на водогрейный котел
Патент на топочное устройство твердотопливного котла
Патент на водогрейный котел
HEATEXPERT товарный знак
KVZR товарный знак
STEAMEXPERT товарный знак
Другая похожая продукция
Котел 0.4 МВт дизельный
Вид топкиДизельная горелка
Максимальная тепловая мощность, МВт0.4
ТопливоДизель, Жидкое
Отапливаемая площадь, м²3000-4300
373 000 р. Цена с НДС
Котел 0.4 МВт на мазуте
Вид топкиМазутная горелка
Максимальная тепловая мощность, МВт0.4
ТопливоМазут, Жидкое
Отапливаемая площадь, м²3000-4300
373 000 р. Цена с НДС
Котел 400 кВт угольный
Вид топкиРучная, Колосники
Максимальная тепловая мощность, кВт400
ТопливоТвердое, Уголь
Отапливаемая площадь, м²3000-4300
421 000 р. Цена с НДС
Котел 0.5 МВт газовый
Вид топкиГазовая горелка
Максимальная тепловая мощность, кВт500
ТопливоГаз
Отапливаемая площадь, м²3900-5500
418 000 р. Цена с НДС
Котел 0.6 МВт газовый
Вид топкиГазовая горелка
Максимальная тепловая мощность, кВт600
ТопливоГаз
Отапливаемая площадь, м²4700-6700
Отапливаемый объем, м³13900-19900
434 000 р. Цена с НДС
Котел на опилках
Лизинг
Вид топкиВихревая, Автоматическая
Максимальная тепловая мощность, кВт400
ТопливоОпилки
Отапливаемая площадь, м²3000-4300
1 470 000 р. Цена с НДС
Котел 0.4 МВт уголь дрова
ТопливоУголь, Дрова, Твердое
Вид топкиРучная, Колосники, ОУР
Максимальная тепловая мощность, МВт0.4
Отапливаемая площадь, м²3000-4300
439 000 р. Цена с НДС
Пеллетный котел 0.4 МВт
Лизинг
Вид топкиРетортная, Автоматическая
Максимальная тепловая мощность, кВт400
ТопливоПеллеты
Отапливаемая площадь, м²3000-4300
1 160 000 р. Цена с НДС
Котел КВа 0.4 МВт HeatExpert
Вид топкиГазовая горелка
Максимальная тепловая мощность, МВт0.4
ТопливоГаз
Отапливаемая площадь, м²3000-4300
373 000 р. Цена с НДС
Котел 400 кВт без дымососа
Вид топкиКолосники
Максимальная тепловая мощность, кВт400
ТопливоУголь
Отапливаемая площадь, м²3000-4300
553 000 р. Цена с НДС
Вы просматривали эти товары
Котел 0.4 МВт газовый
Вид топкиГазовая горелка
Максимальная тепловая мощность, кВт400
ТопливоГаз
Отапливаемая площадь, м²3000-4300
373 000 р. Цена с НДС
Циклон ЦН-15-6-УП
Производительность циклона, м³/ч10600-16960
446 000 р. Цена с НДС
Котел 1000 кВт на дровах
Лизинг
Вид топкиКолосники, ОУР
Максимальная тепловая мощность, кВт1000
ТопливоДрова
Отапливаемая площадь, м²7700-11000
844 000 р. Цена с НДС
Котел КПа 700
Лизинг
Производительность, кг/ч700
ТопливоГаз
Температура пара, не более, °C115
Давление пара, не более, МПа0.07
648 000 р. Цена с НДС
background